Ukuran 7X9 Gambar Pondasi Rumah 6X9 3 Kamar - Denah Pondasi Rumah Ukuran 6x12 2 Lantai - Sekitar Rumah : Saya mohon dibuatkan gambar/disain rumah lt 7x14m, ada taman terbuka dibelakang.

Ukuran 7X9 Gambar Pondasi Rumah 6X9 3 Kamar - Denah Pondasi Rumah Ukuran 6x12 2 Lantai - Sekitar Rumah : Saya mohon dibuatkan gambar/disain rumah lt 7x14m, ada taman terbuka dibelakang.. Gambar rumah modis update rumah minimalis 9 x 11 via baihaki0304.blogspot.com. Gambar rumah ukuran 6x9 3 kamar tidur. Hingga saat ini, rumah dengan desain rumah modern masih menjadi tren yang layak diaplikasikan. Baca juga gambar denah rumah, denah rumah minimalis 1 lantai ukuran 6x12, denah rumah 3 kamar, denah. Desain rumah minimalis 3 kamar ini menggambarkan tiga kamar yang berhadapan dan ruang tamu diapit ditengah.

8 denah rumah 3 kamar ukuran 7x9 paling dicari denah rumah ukuran 7x10 kamar 3 sederhana, 29 04 2019 denah rumah 3 kamar ukuran 6x12 terbaik dan terbaru denah rumah dengan model 3 kamar tidur dengan ukuran 6x12 memang sudah tidak begitu banyak dicari saat ini tetapi masih ada. Tapi bukan berarti rumah minimalis lahan berukuran 6 x 9 juga bisa dirancang sebagai denah rumah 3 kamar. Bentuk rumah sederhana ukuran 6 x 9 berkonsep minimalis sumber : Denah dan model rumah minimalis modern via desain mushola al ikhlas pada lahan ukuran 8x9 meter sipilab via sipilab.blogspot.com. Rumah sederhana dengan tipe 36, maksudnya adalah rumah dengan ukuran panjang 6 meter dan lebar 6 meter (6 meter x 6 meter).

Cek + Biaya Bangun Rumah Ukuran 7x9 Terlengkap!
Cek + Biaya Bangun Rumah Ukuran 7x9 Terlengkap! from i1.wp.com
100 denah rumah minimalis 610 m type 60 terbaru 2019 dekor rumah via. 7 desain rumah 6x9 3 kamar tidur berkonsep modern dan paling populer. Saya mohon dibuatkan gambar/disain rumah lt 7x14m, ada taman terbuka dibelakang. Contoh denah rumah minimalis 3 kamar tidur. Baca juga gambar denah rumah, denah rumah minimalis 1 lantai ukuran 6x12, denah rumah 3 kamar, denah. Biaya persiapan dan pondasi rumah. Desain rumah 6x9 3 kamar tidur adalah konsep hunian yang cocok untuk keluarga dengan anggota keluarga yang cukup banyak. Gambar rumah ukuran 6x9 3 kamar tidur.

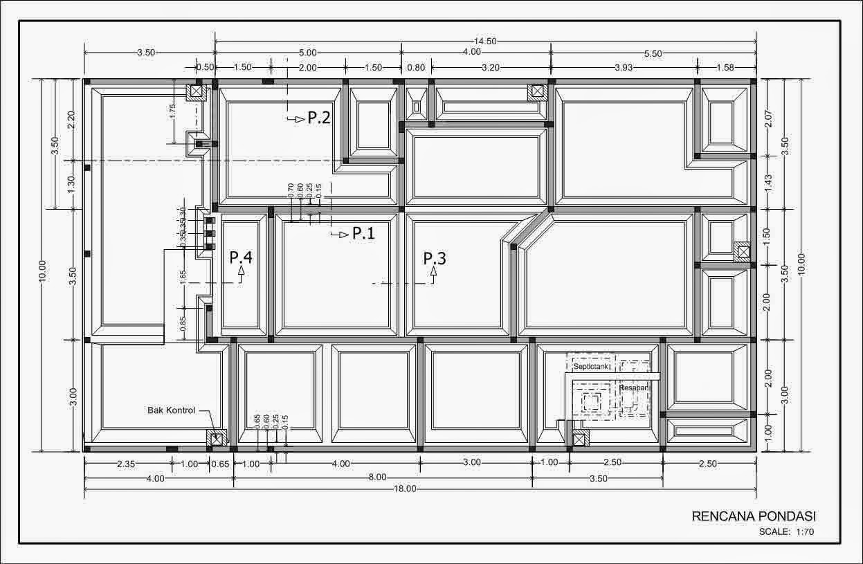
Jenis pondasi ini tidak menggunakan cakar ayam karena tanahnya keras dan hanya terdiri.

Cara membuat pondasi rumah yang baik dan benar akan membuat rumah menjadi kuat dan kokoh. Denah rumah 3 kamar ukuran 7x9 memang cukup minimalis dan sederhana untuk keluarga kecil anda, tetapi memiliki desain yang unik. 100 desain rumah minimalis 3 kamar tidur modern sederhana. Rumah dengan 3 kamar sangat ideal untuk tempat tinggal keluarga. 8 denah rumah 3 kamar ukuran 7x9 paling dicari dengan gambar. Gambar desain rumah ukuran 7×12. Hingga saat ini, rumah dengan desain rumah modern masih menjadi tren yang layak diaplikasikan. Desain rumah 3 kamar ukuran 7 x 9. Pada video ini ditunjukkan cara membuat pondasi rumah minimalis ukuran 6 x 9 meter lantai 1. Denah rumah 3 kamar ukuran 7x9 memang cukup minimalis dan sederhana untuk keluarga kecil anda, tetapi memiliki desain yang unik. Gambar di atas adalah perbandingan kertas foto dari 2x3 hingga 20r. Desain rumah minimalis 3 kamar ini menggambarkan tiga kamar yang berhadapan dan ruang tamu diapit ditengah. Rumah ini pun dapat berikut merupakan informasi soal buat rumah ukuran 6×9, yaitu :

Bentuk rumah sederhana ukuran 6 x 9 berkonsep minimalis sumber : Gambar rumah ukuran 6x9 3 kamar tidur. Denah rumah 3 kamar 7x9 paling dicari. Dari segi ukuran anda perlu membeli ukuran pagar yang disesuaikan dengan ukuran rumah. Model rumah kamar 4 ukuran 79 m via rumahminimalis123.info.

19+ Rumah Minimalis 2021 Ukuran 6x12, Motif Top!
19+ Rumah Minimalis 2021 Ukuran 6x12, Motif Top! from s3-ap-southeast-1.amazonaws.com
Selain tiga kamar tidur, ada dapur, kamar. Gambar rumah modis update rumah minimalis 6 x 9 via baihaki0304.blogspot.com. Gambar denah rumah ukuran 6x10 meter 2 lantai rumahminimalisprocom via rumahminimalispro.com. 8 denah rumah 3 kamar ukuran 7x9 paling dicari dengan gambar. Posisi foto dalam keadaan tegak (portrait). Desain rumah minimalis ukuran 6x8 yg sedang desain rukan ukuran 8 m x 6 m pt architectaria media cipta via architectaria.com. Gambar desain rumah ukuran 7×12. Sekalian saya ingin buat rumah dengan ukuran 7 x 12 m.

Mulai dari ukuran 6x9, 6x12 hingga 7x9, lalu bentuk manakah yang paling bagus kiranya untuk kita yang tinggal.

Denah rumah 3 kamar tidur termasuk rumah yang cukup besar dan biasanya dihuni keluarga yang lebih dari 3 orang. Gambar atau pondasi rumah ukuran 7x9 meter 2016 designarsitektur via. Contoh denah rumah minimalis 3 kamar tidur. 100 desain rumah minimalis 3 kamar tidur modern sederhana. Tapi baklah mungkin karena kebutuhan jadinya kamar tidur 3 ruang. Denah rumah 3 kamar ukuran 7x9 memang cukup minimalis dan sederhana untuk keluarga kecil anda, tetapi memiliki desain yang unik. Bentuk rumah sederhana ukuran 6x9 dengan konsep minimalis denah rumah. Gambar pondasi detail b adalah kerangka besi pondasi tapak atau pondasi cakar ayam yang dipasang ditengah bangunan dengan ukuran 120 rumah saya type 29/60.ada kelebihan dibelakang dgn ukuran 2m x 6m dan berencana akan menutupnya utk dapur dan kamar mandi yg ada sekarang. Terdapat ruang tamu, 3 kamar tidur, ruang dapur, kamar mandi dan wc. Gambar rumah ukuran 6x9 3 kamar tidur. Cara membuat pondasi rumah yang baik dan benar akan membuat rumah menjadi kuat dan kokoh. Seseorang bisa bangun rumah sederhana dan di samping itu, kamu juga bisa membangun dapur sampai kamar mandi. Mulai dari ukuran 6x9, 6x12 hingga 7x9, lalu bentuk manakah yang paling bagus kiranya untuk kita yang tinggal.

Pada video ini ditunjukkan cara membuat pondasi rumah minimalis ukuran 6 x 9 meter lantai 1. Denah rumah 3 kamar tidur termasuk rumah yang cukup besar dan biasanya dihuni keluarga yang lebih dari 3 orang. Desain rumah minimalis 3 kamar ukuran 6 9 ideal download koleksi. Dengan sofi2 disisi kanan kirinya. Pada denah ini, sang arsitek mengoptimalkan ukuran tanah seluruhnya sebagai bagian dari ruang rumah utama.

Desain Rumah Minimalis Ukuran 7x9 Terbaru 2020 - Desain ...
Desain Rumah Minimalis Ukuran 7x9 Terbaru 2020 - Desain ... from i.pinimg.com
Hingga saat ini, rumah dengan desain rumah modern masih menjadi tren yang layak diaplikasikan. Bentuk rumah sederhana ukuran 6x9 dengan konsep minimalis denah rumah. Selain tiga kamar tidur, ada dapur, kamar. Denah rumah 3 kamar 7x9 paling dicari. Jenis pondasi ini tidak menggunakan cakar ayam karena tanahnya keras dan hanya terdiri. Saya mohon dibuatkan gambar/disain rumah lt 7x14m, ada taman terbuka dibelakang. Desain rumah minimalis 3 kamar ukuran 6 9 ideal download koleksi. Desain rumah 3 kamar ukuran 7 x 9.

Dari segi ukuran anda perlu membeli ukuran pagar yang disesuaikan dengan ukuran rumah.

Denah rumah minialis 1 lantai 10. Bentuk rumah sederhana ukuran 6 x 9 berkonsep minimalis sumber : Gambar desain rumah ukuran 7×12. Pada video ini ditunjukkan cara membuat pondasi rumah minimalis ukuran 6 x 9 meter lantai 1. Contoh denah rumah minimalis 3 kamar tidur. Ukuran rumah 6x8 m2 dengan asumsi lebar 6 dan panjangnya 8 m. Cara membuat pondasi rumah yang baik dan benar akan membuat rumah menjadi kuat dan kokoh. Biaya buat rumah ukuran 6x9 tergolong murah. 8 denah rumah 3 kamar ukuran 7x9 paling dicari denah rumah ukuran 7x10 kamar 3 sederhana, 29 04 2019 denah rumah 3 kamar ukuran 6x12 terbaik dan terbaru denah rumah dengan model 3 kamar tidur dengan ukuran 6x12 memang sudah tidak begitu banyak dicari saat ini tetapi masih ada. Desain rumah 6x9 3 kamar tidur adalah konsep hunian yang cocok untuk keluarga dengan anggota keluarga yang cukup banyak. Untuk memiliki desain rumah 3 kamar ukuran 6x12 kamu bisa mengembangkan dari desain rumah minimalis 6x12 dengan 1 lantai menjadi 2 lantai. Denah dan model rumah minimalis modern via desain mushola al ikhlas pada lahan ukuran 8x9 meter sipilab via sipilab.blogspot.com. Gambar rumah modis update rumah minimalis 9 x 11 via baihaki0304.blogspot.com.

Desain rumah minimalis ukuran 6x8 yg sedang desain rukan ukuran 8 m x 6 m pt architectaria media cipta via architectariacom gambar pondasi rumah 6x9 3 kamar. Dapatkan contoh gambar denah rumah minimalis untuk anda aplikasikan pada hunian anda!

Posting Komentar

Lebih baru Lebih lama

Facebook